Yaşam tarzınızı değiştirmeye Kovan Yapı ile başlayın!
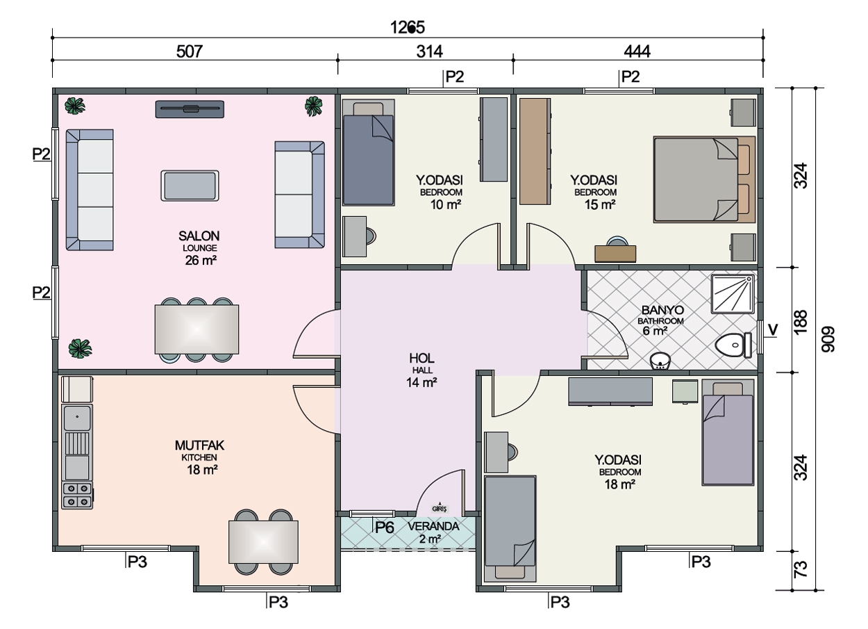
108 + 2 m2 veranda tek katlı prefabrik konut model, plan ve teknik bilgileri
Prefabrik yapılar, fabrikada kontrollü koşullarda üretilen ve sahada kısa sürede monte edilen, uygun maliyetli, modern ve güvenli yapı sistemleridir. Seri üretim ve standartlaştırılmış yapı elemanları sayesinde, geleneksel yapı sistemlerine kıyasla daha ucuz ve ekonomik çözümler sunar. Hızlı kurulum, düşük işçilik maliyeti ve öngörülebilir bütçe avantajlarıyla, kullanıcıların baştan itibaren ne aldığını ve ne kadar ödediğini net olarak bildiği yapı seçenekleri arasında yer alır.
Ana taşıyıcı sistem, galvanizli çelik profillerden oluşur. Tüm taşıyıcı elemanlar statik hesaplara uygun şekilde projelendirilir ve deprem yönetmeliklerine uygun olarak üretilir.
Duvarlar, standart pres panel sistemi ile üretilir. Standart olarak dış duvar kalınlığı 100 mm, iç duvar kalınlığı 60 mm’dir. Müşteri talebine bağlı olarak iç duvarlar 100 mm kalınlığında da uygulanabilir. Paneller, her iki yüzeyi 8 mm fibercement levha kaplı olup; dış duvarlarda 84 mm, iç duvarlarda 44 mm EPS ısı yalıtımı içerir. Presleme yöntemiyle üretilen bu sistem, ekonomik, hızlı ve verimli bir duvar çözümü sunar.
Çatı taşıyıcı sistemi galvanizli çelikten imal edilir. Üst kaplama olarak sandviç panel veya trapez sac kullanılır ve yağmur–kar yüklerine dayanıklıdır.
Yapının dış kabuğunda etkili ısı yalıtımı sağlanır.
Duvar ve çatı sistemleri ses konforu sunacak şekilde tasarlanır.
Islak hacimlerde ve çatıda su yalıtımı standartlara uygun olarak uygulanır.
Elektrik tesisatı gizli tesisat şeklinde uygulanır.
Temiz su ve atık su tesisatları PVC ve PPRC boru sistemleri ile döşenir.
Dış kapılar çelik veya panel kapı, iç kapılar Amerikan panel olarak uygulanır.
Pencerelerde ısıcamlı PVC veya alüminyum doğrama kullanılır.
Zeminlerde laminat parke veya seramik kaplama uygulanır.
Tavanlar alçıpan veya panel sistemleriyle tamamlanır.
Prefabrik yapılar, düşük bakım ihtiyacı ve dayanıklı malzeme yapısı sayesinde uzun ömürlü ve ekonomik kullanım sunar.
ÜRÜNÜN ADI |
TEKNİK ÖZELLİKLER |
MARKA VEYA MODEL |
TEMEL |
Projeye uygun yükseklikte su basmanı oluşturulurken, temel dört tarafı ve ortadan artı şeklinde bağlanan 25 cm genişliğinde perde duvarlarla desteklenir. Perdelerin içerisine 12'lik ve 8'lik demir donatı yerleştirilir ve C35 beton dökülür. Ardından, temel içerisi dolgu taşı ve mıcır ile doldurulur, üzerine hazır çesan yerleştirilir. Son olarak, 15 cm kalınlığında tabliye betonu dökülerek temel tamamlanır. |
C35 HAZIR BETON |
DUVARLAR |
İç ve dış duvarlarda, 1.5 mm galvaniz çelik karkas kullanılarak, gazbeton sıkıştırma yöntemiyle uygulanmaktadır. İç bölücü duvarlarda 10 cm, dış duvarlarda ise 15 cm gazbeton tercih edilmektedir. Vidalı sistemin kullanıldığı yapıda, montaj için trapez vidalar kullanılmaktadır. |
Y TONG-NUH BETON |
SIVA VE BOYA |
Tüm dış duvarlara bir kat kalekim uygulanarak üzerine 3 cm EPS ısı yalıtım levhaları yapıştırılır. Ardından, levhaların üzerine fileli kalekim çekilir ve dekoratif 3 mm sıva uygulanır. Son olarak, dış cepheye iki kat boya yapılır. Yapı içinde ise tüm duvarlara ve tavana fileli alçı, sıva ve saten sıva çekilir ve iki kat boya ile tamamlanır. |
DYO-FİLLİ BOYA-EPS 3 CM MONTALAMA(FLEX) |
KAPILAR |
Yapı içindeki tüm oda kapıları, 10 cm genişliğinde kasa ve 90 cm genişliğinde Amerikan panel kapı şeklinde yapılacaktır. Dış mekan kapısı ise dayanıklılık ve güvenlik açısından kompozit çelik kapı olarak seçilecek olup, ölçüleri 100x210 cm olacaktır. Bu şekilde hem iç mekanın estetiği hem de dış mekanın güvenliği sağlanacaktır |
AMERİKAN PANEL KAPI BİRDAL ÇELİK KAPI |
PENCERELER |
Projede kullanılan pencerelerin tamamı, beyaz, antrasit ve ahşap renk seçenekleri ile alüminyum veya plastik doğrama yapılabilmektedir.Tasarlanan doğramaların tamamı (4+12+4) çift ısı cam özelliğine sahiptir. |
ADOPEN-ASAŞ-ŞİŞE CAM |
SERAMİK VE VİTRİFİYE |
Daire içindeki tüm zeminlere, yüzeyin düzgünleştirilmesi ve dayanıklılığın artırılması amacıyla 7 cm şap uygulanacaktır. Islak zemin alanları, dayanıklılık ve suya karşı direnç sağlamak için seramik kaplama ile tamamlanacaktır. Islak hacimlerde
lavabo, klozet, duş teknesi ve evye gibi vitrifiye ürünleri modern, dayanıklı ve su tasarruflu olacak şekilde seçilecek,
montajları işlevselliği ön planda tutarak yapılacaktır |
VİTRA-BİEN-ÇANAKKALE |
ŞAP VE PARKE |
Daire içindeki tüm zeminlere, yüzeyin düzgünleştirilmesi ve dayanıklılığın artırılması amacıyla 7 cm şap
uygulanacaktır.Mutfak, salon, koridor ve odalar gibi diğer yaşam alanlarında estetik ve sıcak bir görünüm sunan laminat parke kullanılacaktır. Böylece, her alanın kullanım amacına uygun bir zemin kaplaması sağlanacaktır. |
AGT-ÇAMSAN |
ELEKTRİK TESİSATI |
Yapı da elektrik tesisatı, güncel standartlara uygun olarak yapılacaktır. Anahtar ve priz grupları modern tasarımlı, güvenli ve dayanıklı malzemeden seçilecektir. Aydınlatma için tavan ve duvarlara gerekli elektrik hatları çekilecek, mutfak, banyo ve
diğer alanlarda yeterli sayıda priz yerleştirilecektir. Tesisatta topraklama sistemi bulunacak, kaçak akım rölesi kullanılarak güvenlik artırılacaktır. Tüm elektrik ekipmanları enerji tasarrufunu destekleyecek şekilde tercih edilecektir. |
VİKO-SIEMENS-ÖZNUR |
SU TESİSATI |
Dairelerde su tesisatı, kaliteli ve uzun ömürlü malzemelerle yapılacaktır. İç mekanlarda sıcak ve soğuk su hatları ayrı ayrı düzenlenecek, gerekli tüm bağlantılar güvenli şekilde sağlanacaktır. Banyolarda, mutfakta ve diğer ıslak hacimlerde suyun düzgün ve verimli akışını sağlamak için uygun boru çapları seçilecektir. Tesisat, su tasarrufu sağlayan armatürler ve vanalarla donatılacak, su kaçaklarını önlemek amacıyla dikkatli bir montaj yapılacaktır. |
FIRAT PLASTİK-VİTRA |
ÇATI |
Çatı tesisatı, dayanıklılığı artırmak ve sızdırmazlık sağlamak amacıyla yüksek kaliteli malzemelerle yapılacaktır. Çatıda su yalıtımı için uygun örtüler kullanılacak, suyun çatıyı terk etmesini sağlamak için uygun eğim verilecektir. Damlama, su giderleri ve yağmur olukları, suyun çatıda birikmesini önleyecek şekilde yerleştirilecektir. Ayrıca, çatı izolasyonu yapılacak, enerji verimliliğini artırmak amacıyla ısı yalıtımı BOR YALITIM ile sağlanacaktır. |
ONDULİNE-YILBOR-FIRAT PLASTİK |
Copyright 2025 - Kovan Yapı

